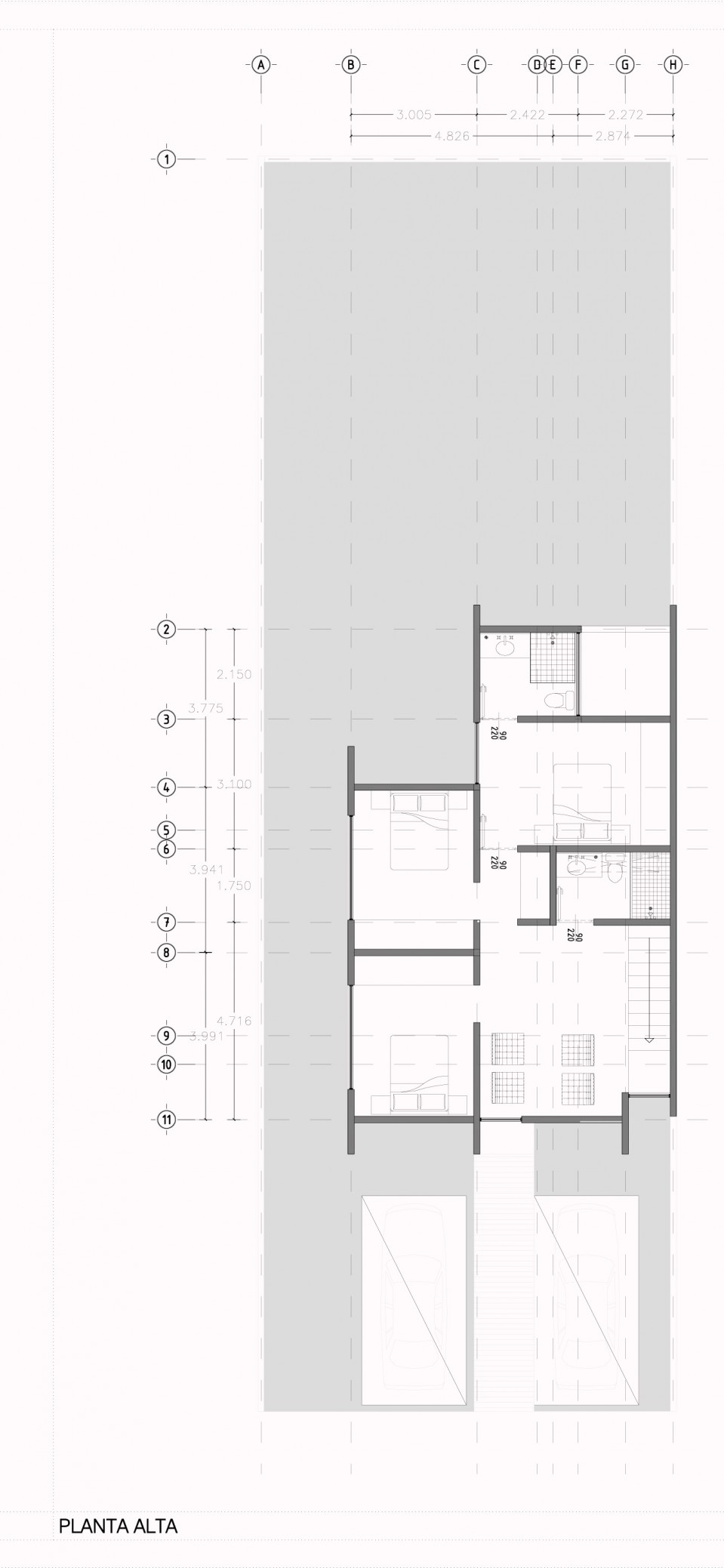
CASA CM1